Startseite
Aktuelles
Serviceteam Hille / Kühn
Pflegeteam Hille / Kühn
Tagespflege und Betreuungsstätte
Stellenangebote
Wohnungsangebote Sonnenhof
Links
Impressum
       


Die Residenz Sonnenhof in Barleben ist eine der schönsten Anlagen des Betreuten Wohnens.

Sie möchten Ihre Selbständigkeit erhalten, in den eigenen vier Wänden wohnen und die Sicherheit haben, das Ihnen im Notfall schnell und kompetent geholfen wird, dann sind Sie hier richtig.

Die Wohnungen, (1 Raum  / 1,5 Raum / 2 Raum ) sind altersgerecht und komfortabel eingerichtet. Die Wohnungen haben eine Einbauküche, der Wohn-und Schlafbereich ist mit Parkettfußböden ausgetattet. Die Bäder sind mit einer begehbaren Dusche und Waschmaschinenanschluß. Alle Wohnungen haben im Erdgeschoß eine Terrasse und ab dem 1.OG einen oder auch zwei Balkone.

Stellplätze, viel Grün, Digitalfernsehen, Internetanschluß, Notrufaufschaltung, Einkaufmöglichkeiten in unmittelbarer Nähe.

Im Objekt befinden sich : Physiotherapie, Arztpraxis, Friseur, Fußpflege und Gastronomie

Nachfolgend ein paar Wohnungsbeispiele :

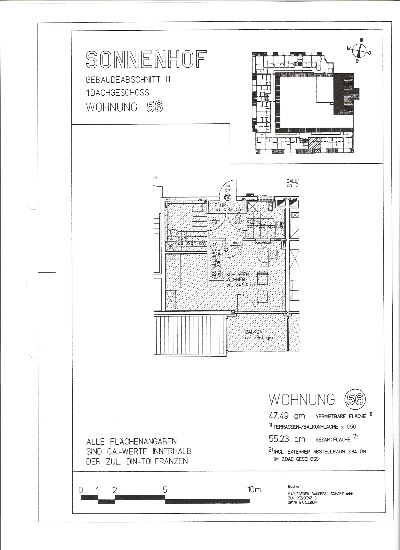
Wohnung :              B 56 / 1 – Raumwohnung 47,49 qm
Lage :                       Südseite 2.OG
Ausstattung :          Fahrstuhl, Parkett , Einbauküche , Bad mit Dusche ,
                                   1 Balkon, Bodenabstellraum


Wohnung :              C 30 / 1 – Raumwohnung 45,45 qm
Lage :                       Südseite , 1.OG
Ausstattung :          Fahrstuhl, Parkett , Einbauküche , Bad mit Dusche ,
                                   1 Balkon, Abstellraum


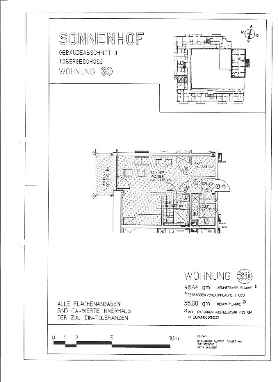
Wohnung :              B 30 / 1 – Raumwohnung 48,44 qm
Lage :                       Westseite , 1.OG
Ausstattung :          Fahrstuhl, Parkett , Einbauküche , Bad mit Dusche ,
                                   Balkon, Bodenabstellraum



Weitere Infomationen : Herr Kühn Residenz Sonnenhof 039203 / 73112 oder unter e-mail : hille-kuehn@t-online.de 

Beispielbilder Innenansicht 1 Raumwohnung :








Bilder Außenanlage Residenz Sonnenhof :


hinterer Bereich mit Parkflächen
                                                                                                                                                                                                                                                    
 


Blick vom Innenhof


Innenhof mit Teich


Durchgang zum Innenhof


Zufahrt zum hinteren Bereich


Gartenanlage Südseite


 
   
   
   
Top